
|
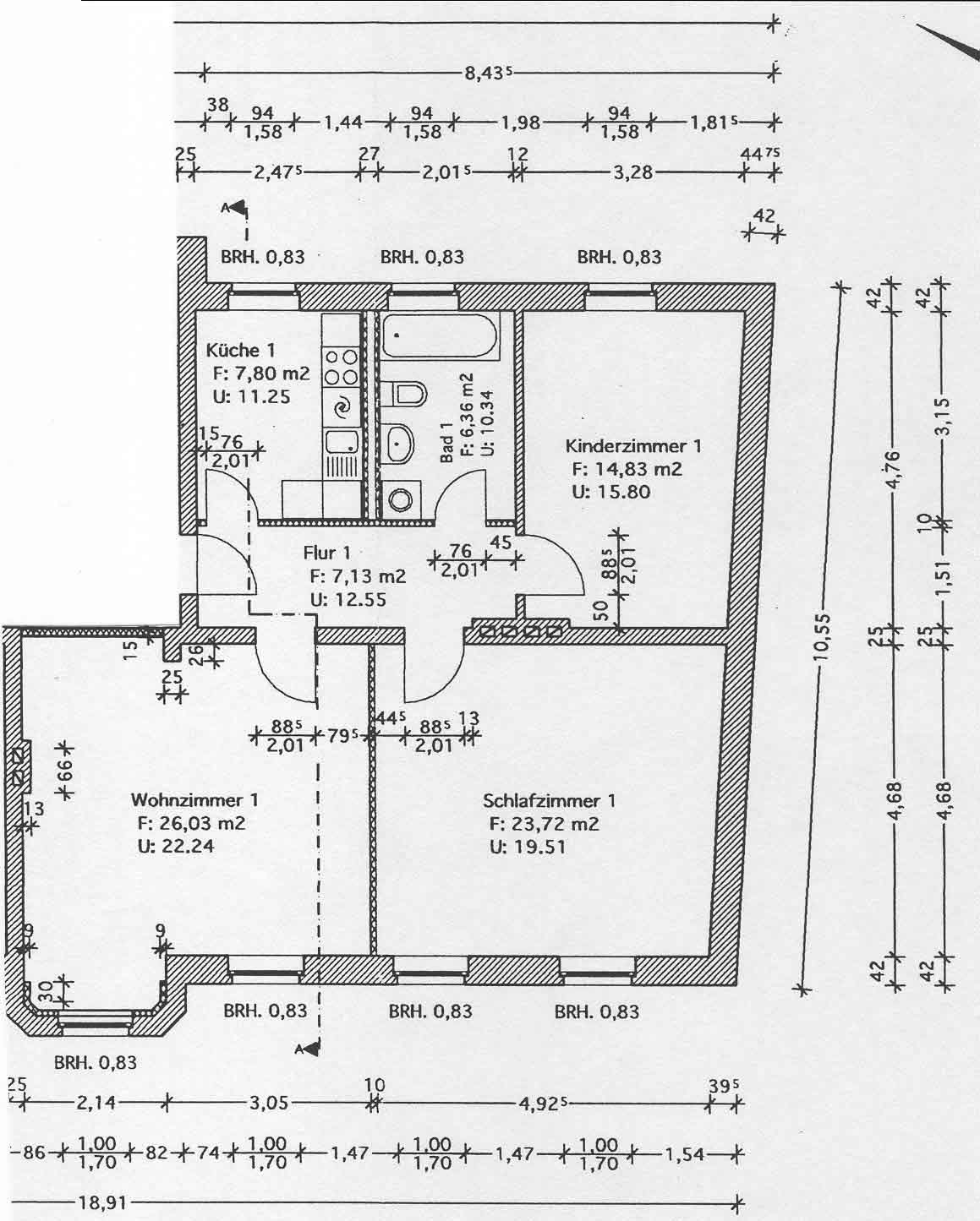
Sehr exklusive Wohnung mit grossem Wohnzimmer, grossem Schlafzimmer, Kinderzimmer, gefliesstem Bad und einer Küche. Wohnzimmer, Schlafzimmer & Flur verfügen über Parkettboden. Zur Wohnung gehört ein eigener Keller und ein eigenes Dachbodenabteil.
| Miete (warm): |
488 € |
Wohnfläche: |
83 m² |
Wohnungstyp: |
Wohnung |
| Miete (kalt): |
349 € |
Nutzfläche: |
112 m² |
Schlafzimmer: |
2 |
| Nebenkosten: |
139 € |
Etage: |
1 |
Badezimmer: |
1 |
| Kaution: |
698 € |
Etagenanzahl: |
1 |
Einbauküche: |
nein |
Grundriss: JPG PDF
Individuelle Anpassungen sind nach Vereinbarung möglich. Die Kaution kann in Raten gezahlt werden. Es fällt keine Provision an. Für eine Besichtigung oder bei weiteren Fragen können Sie mich jederzeit unter 03378/803034 bzw. 0171/4327247 anrufen oder eine Email an info@wohnen-in-forst.de schicken.


Schlafzimmer mit Stuck und schönen neuen Schallschutzfenstern.


Zur Wohnung gehört ein gefliesstes Bad mit Badewanne und Fenster.

Vom Flur geht links das Bad und die Küche ab, rechts das Wohn- & das Schlafzimmer.

|
Mietwohnung 3-Zimmer-Wohnung drei zimmer wohnung Wohnungen Immobilien Apartments Maisonette wohnen leben mieten in Forst an der Lausitz Forst (Lausitz) Gubener Str. Cottbuser Str. Cottbusser Str. Görlitzer Str. Goerlitzer Forster Wohnungsgenossenschaft 03149 Forst Ost West Nord Süd Stadt
|